HOME
FIRM
ARCHITECTURE
EXHIBITS
PLANNING
CONTACT
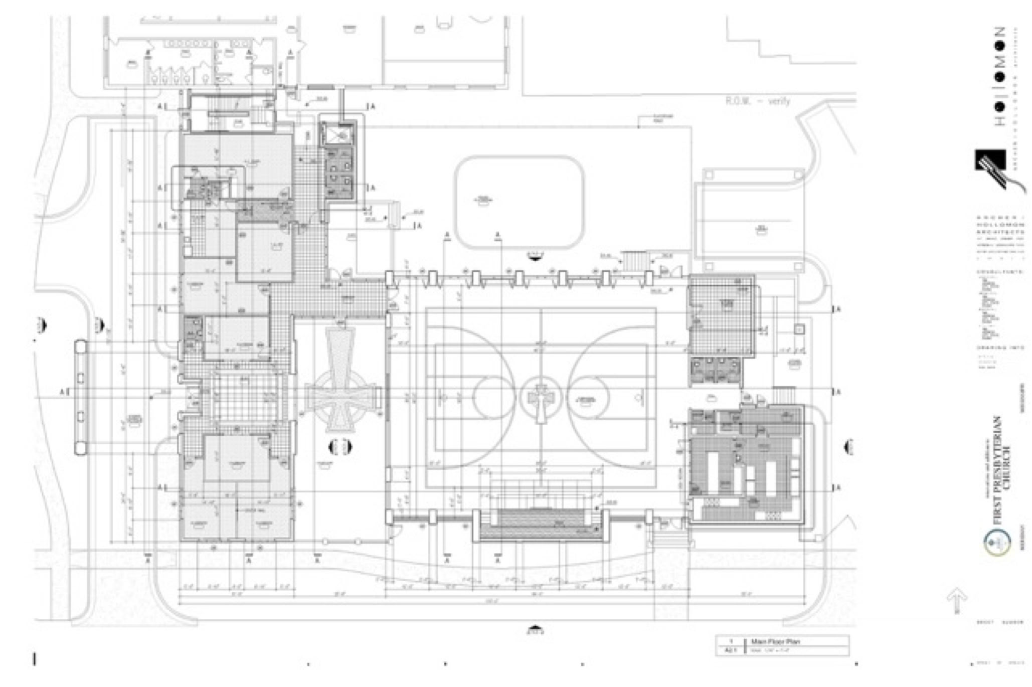
First Presbyterian Church: Meridian, Mississippi
<Previous I Back to Architecture>
Plan
All images are the property of Hollomon Architecture, P.A. / The Hollomon Group, Inc. All rights reserved.
1543 Brobridge Drive / Jackson, Mississippi 39211
tel (601) 957-9660
email farrol@thehollomongroup.com