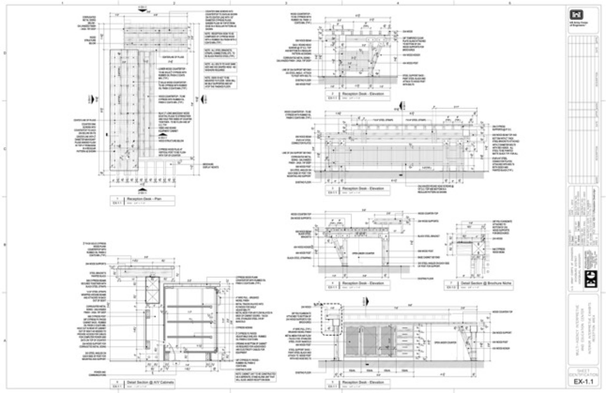
Holt Collier Visitor and Interpretive Center: Sharkey County, Mississippi

Reception Desk Construction Drawing

All images are the property of Hollomon Architecture, P.A. / The Hollomon Group, Inc. All rights reserved.

1543 Brobridge Drive / Jackson, Mississippi 39211

 tel (601) 957-9660 

 email farrol@thehollomongroup.com